listing_gallery

Verkocht
Vraagprijs € 532.500

Van Heutszstraat 1

Tilburg
  • 4 slaapkamers
  • 136 Woonoppervlakte
  • 132 m2
In de populaire woonwijk “Armhoef” gelegen, volledig gerenoveerde hoekwoning met enorme woonkeuken, sfeervolle woonkamer en zonnige stadstuin op het westen. 

Dit voormalige winkel/woonhuis is geheel gerenoveerd, opgebouwd, aangebouwd, voorzien van stalen binnendeuren op de begane grond en een volledig te openen achter pui ( harmonica-deuren). De woning is instapklaar en het is hier prachtig wonen in een huis met veel leefruimte, heerlijk licht en een mooie leefkeuken waar je je vrienden en familie graag wilt ontvangen. 


INDELING

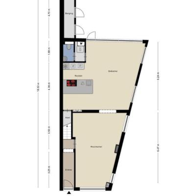
Begane grond

Entree in hal met originele tegelvloer en trapopgang naar de verdieping. Middels een stalen deur toegang tot de riante woonkamer aan de voorzijde (vroegere winkelruimte). Deze living heeft veel lichtinval, strakke wanden en een houten vloer. Middels openslaande stalen deuren is er toegang tot de gigantische woonkeuken, waar momenteel een riante eethoek is opgesteld. De keuken is ruim van opzet en beschikt over een kookeiland en een kastenwand voorzien van apparatuur. Zowel het koffiezetapparaat, de combi-magnetron/oven en de vaatwasser zijn recent vernieuwd. Verder is de keuken voorzien van een fornuis met grote oven en een koelkast met vriezer. Voor meer bergruimte is er een praktische trapkast aanwezig. Ook de keuken is afgewerkt met strakke wanden en een houten vloer. In deze ruimte is er veel lichtinval aanwezig door de verschillende raampartijen en de grote achter pui.

Aangrenzend aan de keuken is er een portaal voorzien van de was aansluiting en hier is er tevens toegang tot het toilet met zwevend closet. 


1e verdieping

Overloop met de trapopgang naar de zolderverdieping. Op deze verdieping zijn drie slaapkamers aanwezig. Alle kamers zijn voorzien van een laminaatvloer en de grote slaapkamer is voorzien van airco. De opgebouwde badkamer beschikt over een inloopdouche, een ligbad, een toilet en een dubbele wastafel in meubel. Door de aanwezigheid van een lichtkoepel is er veel daglicht in de badkamer. 


2e verdieping

Middels vaste trap te bereiken zolderverdieping. Hier is een brede dakkapel (kunststof kozijn) aanwezig, waardoor een extra slaapkamer te realiseren is. Daarnaast is er veel bergruimte aanwezig onder de schuine kanten van de kap. 


Buiten

Deze fijne stadstuin is volledig bij de woning te betrekken doordat de volledige achter pui van de woning geopend kan worden. In de tuin is een houten berging aanwezig met ruimte voor de kliko. De tuin is geheel omsloten en middels een poort is er toegang tot de straat. 

Bijzonderheden:
- bouwjaar 1935, geheel gerenoveerd in 2019;
- instapklare woning;
- elektra vernieuwd in 2019;
- installaties, leidingen, afvoeren en verwarming vernieuwd;
- keuken uitgebouwd en voorzien van harmonica-pui;
- badkamer opgebouwd en vernieuwd in 2019.
Type woning:
Woonhuis
Soort woning
Eengezinswoning
Type woning
Hoekwoning
Beschikbaarheid
Verkocht
Vraagprijs
€ 532.500
Koopconditie
Kosten koper
Aanvaarding
In overleg
Inhoud
495 m3
Perceel
132 m2
Woonoppervlakte
136 m2
Aantal kamers
6
Aantal slaapkamers
4
Overig inpandige ruimte
4 m2
Bouwjaar
1935
Energielabel
E

Wilt u graag een volledige brochure ontvangen? Vul dan uw naam en emailadres in en we sturen u direct door naar de brochure.

Meer informatie over deze woning of een bezichtiging plannen?

Neem dan contact op met één van onze makelaars via 013 580 20 70 of stuur een mail naar info@gerritsemakelaardij.nl.