listing_gallery

Verkocht
Vraagprijs € 450.000

Vlierlaan 13

Berkel-Enschot
  • 4 slaapkamers
  • 161 Woonoppervlakte
  • 310 m2
Op gewilde en in zeer groene woonomgeving gelegen 2/1 - kapwoning met garage. Deze ruime woning ligt in een rustige straat op 2 minuten loopafstand van een basisschool en diverse speelveldjes. Winkels zijn op 5 minuten loopafstand.

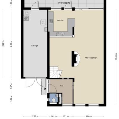
Indeling begane grond

Entree/hal met toilet met fontein (hangcloset, volledig betegeld) en meterkast. Veel lichtinval door de grote raampartijen, wat overigens voor het hele huis geldt! Via een glazen deur toegang tot de royale woonkamer met aansluitend de woonkeuken. Bij de gezellige zithoek treft u, centraal opgesteld, de open haard. Door de centrale opstelling is er aan de andere zijde nóg een zitgelegenheid. De woonkeuken met bar beschikt over een keukenblok in U-opstelling voorzien van inbouwapparatuur te weten vier pits gaskookplaat, afzuigkap, vaatwasser en koelkast. Zowel een schuifpui als ook een loopdeur bieden toegang tot de achtertuin. De gehele begane grond is voorzien van een houten vloer.

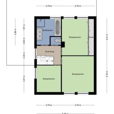
Eerste verdieping

Overloop met toegang tot alle vertrekken. Drie royale slaapkamers van achtereenvolgens 15, 8,5 en 15 m² waarvan de laatste over een grote schuifkastenwand beschikt. Alle kamers en de overloop zijn voorzien van een laminaatvloer. Overloop met separaat toilet en tot slot een badkamer voorzien van inloopdouche, ligbad, dubbele wastafel in meubel en een decorradiator.

Tweede verdieping

Via vaste trap bereikbaar. Voorzolder met twee royale bergruimtes waarvan één met opstelling CV combiketel (Remeha). Enorm grote vierde slaapkamer met recent opgeknapte dakkapel en wastafel.

Garage

Oprit met toegang tot garage van ruim 24 m² met aansluitingen wasapparatuur, verwarming en elektra. Hier zijn nog diverse mogelijkheden waaronder het creëren van een kinderkamer annex kantoor aan huis.

Tuin

Fraai aangelegde achtertuin op het westen gelegen met vijverpartij, sfeervolle verlichting, palmboom en fraaie bestrating. Elektrisch bedienbaar zonnescherm.

Algemeen

* Keurig bijgehouden woning, op een aantal punten is modernisering mogelijk.
* Houten kozijnen met dubbele beglazing.
* Aanvaarding op korte termijn mogelijk.
Type woning:
Woonhuis
Soort woning
Eengezinswoning
Type woning
Twee onder een kapwoning
Beschikbaarheid
Verkocht
Vraagprijs
€ 450.000
Koopconditie
Kosten koper
Aanvaarding
In overleg
Inhoud
629 m3
Perceel
310 m2
Woonoppervlakte
161 m2
Aantal kamers
5
Aantal slaapkamers
4
Gebouwgebonden buitenruimte
13 m2
Overig inpandige ruimte
24 m2
Bouwjaar
1977
Energielabel
C

Wilt u graag een volledige brochure ontvangen? Vul dan uw naam en emailadres in en we sturen u direct door naar de brochure.

Meer informatie over deze woning of een bezichtiging plannen?

Neem dan contact op met één van onze makelaars via 013 580 20 70 of stuur een mail naar info@gerritsemakelaardij.nl.