Op prachtige locatie in de "Hellen" aan een groen park treft u deze schitterend afgewerkte instapklare geschakelde woning, type 'stadswoning'. De woning werd in 2021 ingrijpend gemoderniseerd met o.a. een nieuwe keuken, nieuwe badkamer, nieuw toilet, 12 zonnepanelen en stucwerk. Eigentijds en modern op een heerlijke plek, de woning geeft u een warm welkom.
De indeling bestaat onder andere uit een woonkamer op de eerste verdieping met een sfeervol dakterras op het zuiden en een balkon aan de achterzijde, alsmede twee parkeerplaatsen met 'carport' op een afgesloten terrein. Deze moderne en unieke woning beschikt over een mooi uitzicht, nabij scholen en dichtbij het centrum. Vanuit de wijk de Hellen zijn uitstekende verbindingswegen richting Breda, Eindhoven en 's-Hertogenbosch.
INDELING
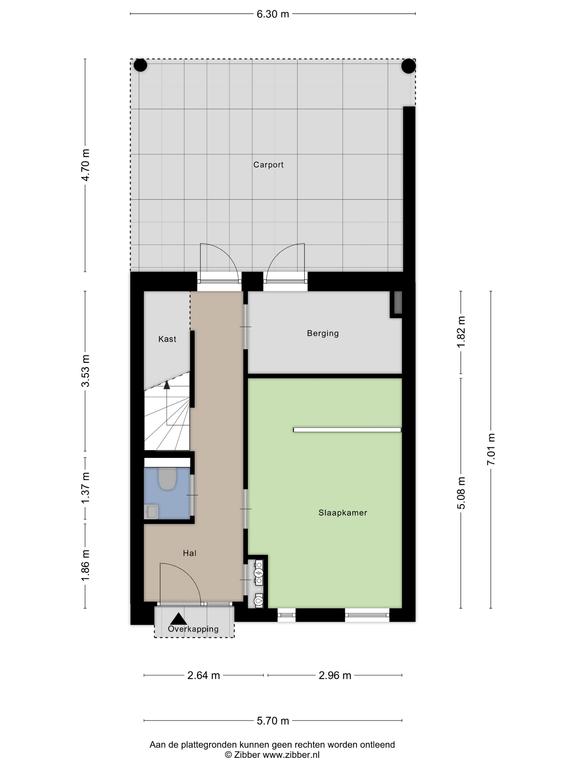
Begane grond
Entree/hal met garderobe, vernieuwde toiletruimte (2021) v.v. zwevend closet en fontein. Slaap-/werkkamer van ca. 17,5 m² met walk-in-closet/archiefruimte met aansluiting voor bijvoorbeeld een wastafel of een douche, bergruimte onder de trap en achteringang naar het achtergelegen terrein. Tevens een inpandige berging met een aparte loopdeur naar de carport, voorzien van tegelvloer en elektra. De hele begane grond is volledig uitgevoerd met een laminaat vloer met vloerverwarming.
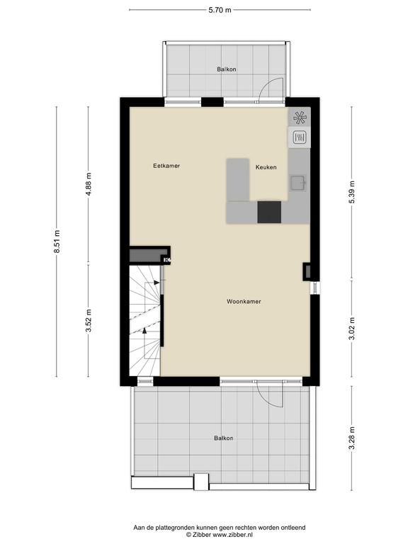
1e verdieping
Via fraaie trapopgang, waarvan de treden bekleed zijn met PVC, toegang door middel van een moderne aluminium/glazen deur naar de lichte en sfeervolle woonkamer. De living beschikt over grote raampartijen, een balkon aan de achterzijde en een fraai in de zon gelegen dakterras aan de voorzijde, welke op het zuiden is georiënteerd. Hier bevindt zich over de gehele breedte een elektrisch bedienbaar zonnescherm. Het eetgedeelte beschikt over een vaste servieskast. De luxe, open keuken (2021) is op fraaie wijze geïntegreerd in de prachtige ruimte en is in een
U-opstelling geplaatst. De keuken is afkomstig van CVT en beschikt naast een composiet aanrechtblad over de navolgende inbouwapparatuur van Siemens: koffiezetmachine, quooker, warmte houdlade, oven, vaatwasser en een koel-/vriescombinatie. Een vier-pits inductiekookplaat met ingebouwde afzuigunit (Bora) en een wijnklimaatkast.
2e verdieping
Overloop met toegang tot twee royale slaapkamers van resp. 22 m² en 14 m² waarvan de hoofdslaapkamer aan de voorzijde gelegen is en over tv aansluiting beschikt en de tweede slaapkamer aan de achterzijde gelegen is, momenteel in gebruik als kastenkamer met vaste schuifkastenwand. Berging met opstelling van een hybride warmtepomp/ c.v.-combiketel (Daalderop 2012), de mechanische ventilatie-unit en de aansluitingen ten behoeve van de wasmachine en droger. De uiterst luxe badkamer (2021) is uitgevoerd met een ligbad, inloop-/regendouche, hangcloset, dubbele wastafel in meubel en een decorradiator.
Parkeren
Twee eigen parkeerplaatsen met carport op het achtergelegen, afgesloten terrein (middels een elektrische poort met een afstandsbediening toegankelijk). Aansluiting voor een laadpaal is aanwezig.
Algemeen:
* verrassend ruime en speels ingedeelde woning;
* hoge plafonds van 2,70 m voor een ruimtelijk gevoel;
* in 2021 nagenoeg geheel vernieuwd en gemoderniseerd;
* geheel voorzien van vloerverwarming als hoofdverwarming;
* stucwerk op wanden en plafonds, binnen,- en buitenschilderwerk in 2021/2022 uitgevoerd;
* volledig geïsoleerd en geheel uitgevoerd met (HR+) dubbele beglazing;
* mooie laminaat vloer op de begane grond en de tweede verdieping. Op alle woonlagen zijn hoge plinten aangebracht en de eerste verdieping en de trappen zijn voorzien van PVC;
* 12 zonnepanelen op het dak;
* iedere verdieping voorzien van rookmelders.                        
                        
                            
                                                            
                                    
                                        Soort woning
                                    
                                    
                                        Eengezinswoning                                    
                                 
                                
                                    
                                        Type woning
                                    
                                    
                                        Geschakelde woning                                    
                                 
                            
                            
                                                            
                                
                                    
                                        Koopconditie
                                    
                                    
                                        Kosten koper                                    
                                 
                            
                            
                            
                                                            
                                                                                        
                            
                            
                            
                            
                                                            
                                    
                                        Gebouwgebonden buitenruimte
                                    
                                    
                                        53 m2
                                    
                                 
                            
                            
                            
                                                            
                                                     
                        
                        
                        
                                                                                                Wilt u graag een volledige brochure ontvangen? Vul dan uw naam en emailadres in en we sturen u direct door naar de brochure.