Deze geschakelde woning is gelegen in een bosrijke omgeving in de gewilde wijk Boschkens. De woning is zeker niet standaard ingericht en beschikt over o.a. vier slaapkamers, een inpandige garage en een op het zuiden gerichte patiotuin. Naast de mogelijkheid om te parkeren op eigen terrein is er ook voldoende parkeergelegenheid in de straat. 
De woning is zeer energiezuinig d.m.v. volledige isolatie, een aardwarmtepomp met in de gehele woning vloerverwarming en koeling en een WTW installatie (warmte-terug-win unit).
De wijk Boschkens kenmerkt zich met name door de groene omgeving, de kind vriendelijkheid en de aanwezigheid van de uitvalswegen richting Tilburg en de A58 richting Breda, ’s-Hertogenbosch en Eindhoven. Het centrum van Goirle met al haar voorzieningen, is goed bereikbaar in ca. 5 minuten. 
Indeling:
Entree in hal met garderoberuimte, de trapopgang naar de verdieping, toiletruimte en toegang tot de inpandige garage. De toiletruimte is ingericht met een zwevend toilet, een fonteintje en de ruimte is volledig betegeld. De inpandige garage heeft een kanteldeur en een loopdeur naar de voortuin. Tevens is hier de warmtepomp opgesteld en is er een trap-/voorraadkast aanwezig. De garage is voorzien van vloerverwarming.
Vanuit de hal toegang tot de woonkamer met lichte natuurstenen vloer (Massangis). De woonkamer heeft veel lichtinval door het grote raam aan de voorzijde en een schuifpui naar de tuin. 
De keuken met hoekopstelling is voorzien van een keramische kookplaat, afzuigkap, combi magnetron/oven en koelkast. Vanuit de keuken is zicht op de patio tuin. 
1e verdieping:
Overloop met separate toiletruimte, toegang tot twee royale slaapkamers en de badkamer. De gehele verdieping is voorzien van een laminaatvloer met vloerverwarming. De badkamer is ingericht met een ligbad, een douche in cabine met thermostaatkraan en regendouche en een brede wastafel in meubel. Dit alles is uitgevoerd in lichte kleuren. 
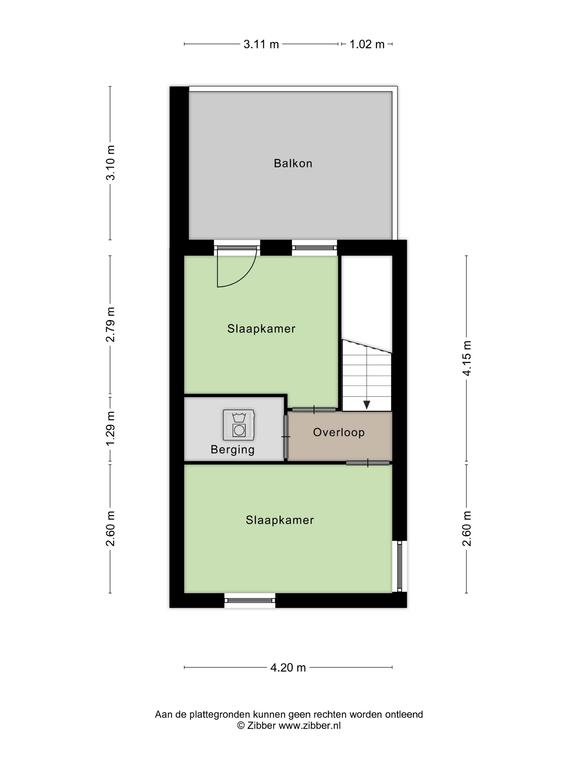
2e verdieping: 
Overloop met vaste kast waarin de ventilatie-unit is geplaatst en ruimte is voor het plaatsen van de wasmachine en droger. Vanuit de overloop toegang tot twee slaapkamers. De slaapkamer aan de achterzijde geeft toegang tot het zonnige dakterras. Ook deze verdieping is voorzien van een laminaatvloer met vloerverwarming. 
Buiten: 
De voortuin is voorzien van sierbestrating en een oprit voor de garage. De patio tuin is gelegen op het zuiden. De tuin is geheel omsloten en aan de achterzijde zijn verschuifbare, houten lamellen aanwezig, die veel privacy bieden. 
                         
                        
                            
                                                            
                                    
                                        Soort woning
                                    
                                    
                                        Eengezinswoning                                    
                                 
                                
                                    
                                        Type woning
                                    
                                    
                                        Geschakelde woning                                    
                                 
                            
                            
                                                            
                                
                                    
                                        Koopconditie
                                    
                                    
                                        Kosten koper                                    
                                 
                            
                            
                            
                                                            
                                                                                        
                            
                            
                            
                            
                                                            
                                    
                                        Gebouwgebonden buitenruimte
                                    
                                    
                                        18 m2
                                    
                                 
                            
                                                            
                                    
                                        Overig inpandige ruimte
                                    
                                    
                                        24 m2
                                    
                                 
                            
                            
                                                     
                        
                        
                        
                                                                                                Wilt u graag een volledige brochure ontvangen? Vul dan uw naam en emailadres in en we sturen u direct door naar de brochure.