Gelegen in een rustige, groene en kindvriendelijke woonwijk nabij het centrum van Kaatsheuvel vindt u deze nette gedateerde eindwoning met ruime voor- en achtertuin, eigen oprit, garage en ruime werkplaats. 
De woning is gelegen aan een rustige straat met snelle ontsluiting naar diverse uitvalswegen nabij alle voorzieningen. 
Ook wanneer je van de natuur houdt, biedt de omgeving meer dan voldoende fiets-/wandelroutes in het groen. Met diverse uitvalswegen is de bereikbaarheid naar steden als Tilburg, Breda en 's-Hertogenbosch goed. Op slechts tien minuten fietsen sta je al in de "Wereld vol Wonderen"!
INDELING
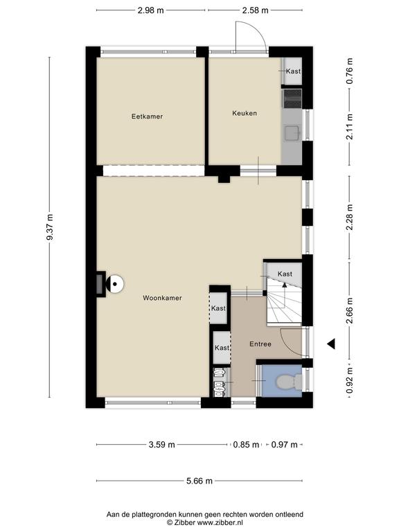
Begane grond
Hal met meterkast, toilet en toegang tot de gezellige woonkamer voorzien van een gaskachel en tegelvloer.  Vanuit de woonkamer heeft u een heerlijk vrij uitzicht aan de voorzijde. Aan de achterzijde is de woning uitgebouwd en heeft u fraai zicht op de tuin. 
Aparte dichte keuken met veel kastruimte. Zowel de woonkamer als de keuken zijn voorzien van rolluiken. 
1e verdieping
Overloop met toegang tot de drie slaapkamers en badkamer. 
U treft op de verdieping een voorslaapkamer en twee achter slaapkamers. De grote slaapkamer achter is voorzien van een airco-unit. 
De geheel betegelde badkamer is voorzien van toilet, vaste wastafel en een grote douche. 
2e verdieping
Er is een vaste trap naar de tweede verdieping welke in gebruik is als bergzolder met de opstelling van de Cv-ketel. 
Tuin
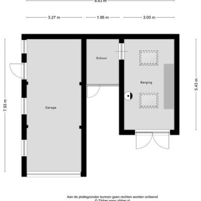
Ruime voortuin, eigen royale oprit met toegang tot de garage (3x8m) en werkplaats/magazijn. 
Veel privacy biedende achtertuin met terras en plantenborders. 
Algemeen:
- bouwjaar 1967;
- de woning is rondom voorzien van rolluiken (zowel handmatig als elektrisch bedienbaar);
- nabij het centrum van Kaatsheuvel;
- werkplaats in spouw en voorzien van betonnen vloer;
- verwarming en warm water via een Cv-combiketel 2020;
- goede bereikbaarheid;
- slechts tien minuten fietsen van de Efteling;
- de woning behoeft modernisering;
- aanvaarding per direct.
                         
                        
                            
                                                            
                                    
                                        Soort woning
                                    
                                    
                                        Eengezinswoning                                    
                                 
                                
                            
                            
                                                            
                                
                                    
                                        Koopconditie
                                    
                                    
                                        Kosten koper                                    
                                 
                            
                            
                            
                                                            
                                                                                        
                            
                            
                            
                                                            
                            
                            
                            
                            
                                                            
                                                     
                        
                        
                        
                                                                                                Wilt u graag een volledige brochure ontvangen? Vul dan uw naam en emailadres in en we sturen u direct door naar de brochure.