listing_gallery

Verkocht
Vraagprijs € 329.000

Borneostraat 11

Tilburg
  • 3 slaapkamers
  • 96 Woonoppervlakte
  • 143 m2
Deze fijne uitgebouwde woning met stenen berging en de badkamer op de 1e verdieping is gunstig gelegen nabij het centrum van Tilburg. De woning heeft een ruime uitgebouwde woonkamer, drie slaapkamers en een grote bergzolder. De leuke achtertuin is gelegen op het noordwesten. 
De woning is gelegen nabij de Ringbaan-Oost in een gevarieerde woonwijk, vanuit de woning zijn de uitvalswegen, het centrum van Tilburg, het station en de overige voorzieningen van de stad goed bereikbaar. 


INDELING

Begane grond

Middels de voortuin is de entree van de woning bereikbaar. Entree in de hal met de trapopgang naar de verdieping en toegang tot de woonkamer. 
De woonkamer met hoog plafond is voorzien van een zeer nette vissengraat vloer (PVC) en gestucte wanden. De kamer is aan de achterzijde uitgebouwd waardoor er extra leefruimte is ontstaan voor bijv. een werkplek of speelruimte. Middels een lichtstraat en de schuifpui is er veel lichtinval in de woonkamer. 
De keuken is uitgevoerd in lichte kleuren en ingericht met een hoekopstelling en een rechte opstelling aan de andere zijde. De keuken is voorzien van inbouwapparatuur zoals een keramische kookplaat, afzuigkap, vaatwasser en ruimte voor een grote koelkast. Vanuit de keuken is de kelder bereikbaar, waar ruimte is voor opslag en hier is de meterkast aanwezig. 
De bijkeuken is achter de keuken gelegen en hier is de aansluiting voor de wasapparatuur aanwezig, de toiletruimte en de deur naar de achtertuin. Toiletruimte is vernieuwd in 2021 en voorzien van zwevend toilet en fonteintje. 


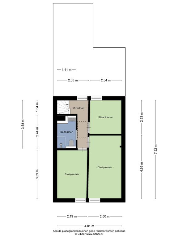
1e verdieping

Overloop met toegang tot de drie slaapkamers en de badkamer. Twee slaapkamers zijn gelegen aan de voorzijde van de woning en de derde slaapkamer is gelegen aan de achterzijde. Alle kamers zijn voorzien van een lichte vloer en gestucte wanden. 
De centraal gelegen, moderne badkamer is voorzien van een inloopdouche, toilet en wastafel in meubel. 


2e verdieping

Middels vlizotrap te bereiken grote bergzolder met de opstelling van de Cv-ketel en een dakraam voor de lichttoetreding. 

?
Buiten

Voortuin met deels bestrating en ruimte voor beplanting. De achtertuin is geheel omsloten en voorzien van bestrating, beplanting en ruimte voor een tuinset. Achterin de tuin staat een grote stenen berging met elektra en een achterom.


Bijzonderheden:
• de woning is grotendeels voorzien van rolluiken;
• energielabel D;
• badkamer op de 1e verdieping;
• fijne lichtstraat voor extra lichtinval.
Type woning:
Woonhuis
Soort woning
Eengezinswoning
Type woning
Tussenwoning
Beschikbaarheid
Verkocht
Vraagprijs
€ 329.000
Koopconditie
Kosten koper
Aanvaarding
In overleg
Inhoud
367 m3
Perceel
143 m2
Woonoppervlakte
96 m2
Aantal kamers
4
Aantal slaapkamers
3
Externe bergruimte
9 m2
Overig inpandige ruimte
8 m2
Bouwjaar
1919
Energielabel
D

Wilt u graag een volledige brochure ontvangen? Vul dan uw naam en emailadres in en we sturen u direct door naar de brochure.

Meer informatie over deze woning of een bezichtiging plannen?

Neem dan contact op met één van onze makelaars via 013 580 20 70 of stuur een mail naar info@gerritsemakelaardij.nl.