Op een zeer gewilde en centrale locatie vlakbij de Piushaven en de AaBe fabriek bieden wij u een prachtige instap klare woning aan. Op de begane grond vindt u een ruime en sfeervolle woonkamer met daarachter de ruime keuken. Verder zijn er een separaat toilet en een moderne badkamer op deze verdieping. In totaal heeft deze woning vier riante slaapkamers, drie op de eerste etage en één op de zolder. Op de eerste etage bevindt zich ook een separaat toilet. Heerlijk stadstuin gelegen op het zuiden met veel privacy, berging en achterom.
De woning is gelegen ten zuiden van het centrum in een sfeervolle wijk. De Piushaven en de AaBe Fabriek, twee hotspots in Tilburg, zijn te voet in minder dan 10 minuten te bereiken. Al fietsend bereikt u binnen 5 minuten het centrum. De woning is daarnaast op een ideale locatie gelegen vlakbij uitvalswegen richting de omliggende steden. Heeft u zin in een wandeling? Dan steekt u de Ringbaan Zuid over en u bent in het Leijpark en heeft u geen zin in drukte, dan loop je zo naar het mooie natuurgebied Moerenburg wat aan de andere kant van de Puishaven ligt. Al met al ligt deze woning zeer gunstig.
Indeling
BEGANE GROND:
Entree: Via de karakteristieke voordeur met glas-in-lood bovenlicht betreed je de hal van deze woning. De originele wandtegels en de Terrazzovloer zorgen voor een mooie uitstraling van de entree. Je vindt hier de trap naar de eerste verdieping, de toegang tot de living, trapkast en aparte inbouwkast.
Woonkamer: De woonkamer is opgedeeld in een eetgedeelte en een zitgedeelte. Dit geeft de ruimte een extra speels effect. Hier is voldoende ruimte voor een royale zithoek en een grote eethoek. Het plafond en de wanden zijn strak afgewerkt en vormen een mooi contrast met de warme eiken houten vloer. Ook hier weer mooie authentieke details zoals de glas-in-lood ramen en de paneeldeuren. De openslaande deuren in de achtergevel zorgen voor een gezellig contact met de achtertuin.
Keuken: Aan de achterzijde van de woning bevindt zich de moderne lichte keuken. De keuken is van alle gemakken voorzien en beschikt over een kastenwand met een koelkast met vriezer, een oven en een magnetron op ooghoogte. Er is een strak aanrechtblad met een 5 pits gaskookplaat, een RVS afzuigkap en een vaatwasser. Door het raam boven het aanrecht valt lekker veel daglicht naar binnen. Naast het aanrecht vind je nog een originele inbouwkast. Ideaal voor het opbergen van je servies en/of keukenspullen.
De hal achter de keuken geeft toegang tot het aparte toilet, de badkamer en de achtertuin.
Badkamer: De moderne badkamer is volledig betegeld en beschikt over een dubbele wastafel met ondermeubel, een design radiator en een ligbad met douchefunctie. Hierin kom je heerlijk tot rust na een drukke dag.
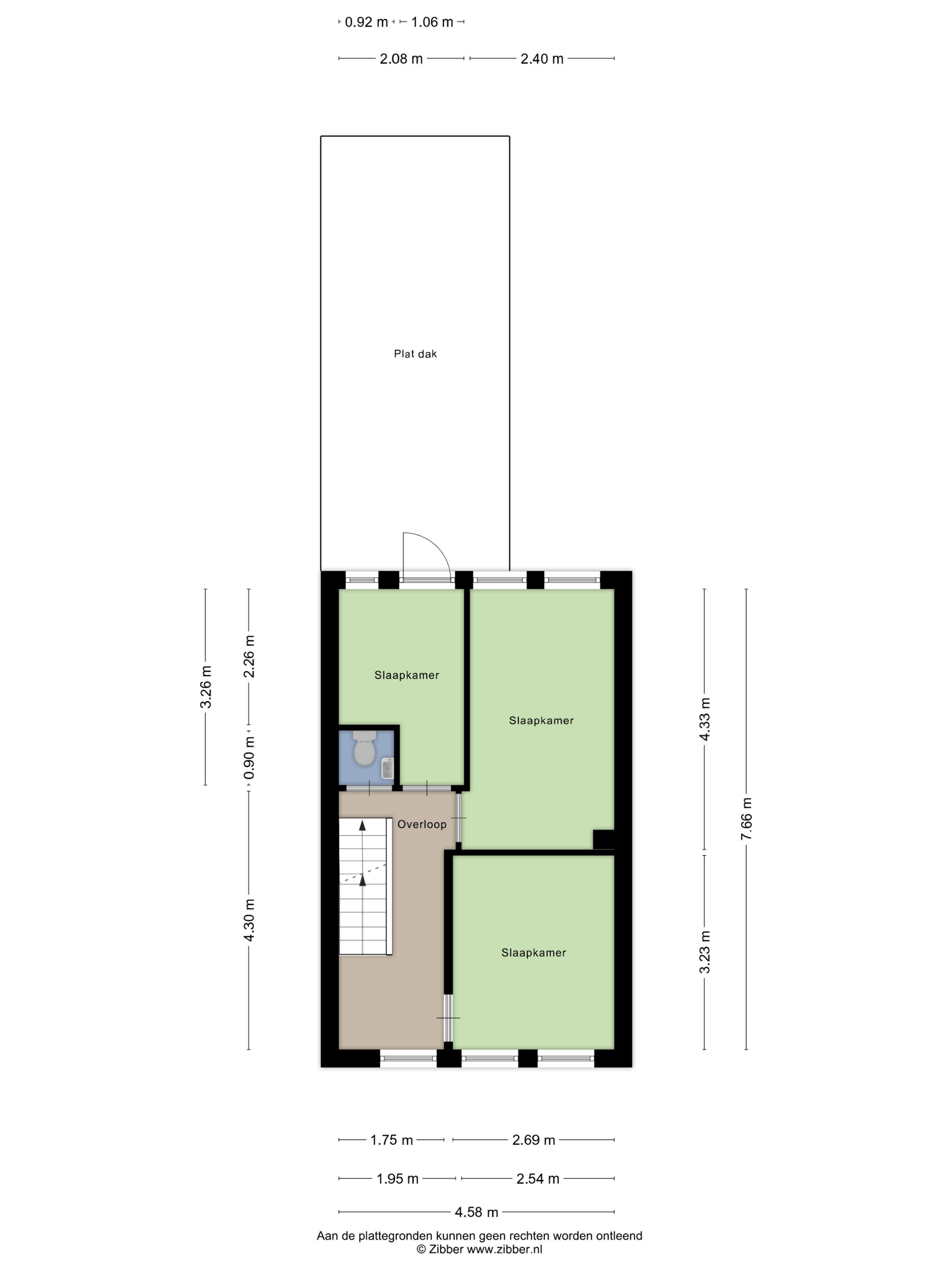
Eerste verdieping
Via de overloop op de eerste verdieping heb je toegang tot de 3 slaapkamers en het aparte toilet. Er zijn twee achterslaapkamers, waarvan 1 met loopdeur naar het platte dak. Aan de voorzijde van de woning vind je nog een ruime slaapkamer. De verdieping is afgewerkt met een doorlopende houten vloer.
Tweede verdieping
Via de vaste trap bereik je de tweede verdieping. Hier treft u de "masterbedroom" en een ruime aparte berging met daarin de aansluitingen voor de wasmachine en de droger. De verdieping heeft een grote dakkapel aan de achterzijde voorzien van elektrisch rolluik en een dakraam aan de voorzijde. De verdieping is afgewerkt met een houtlook laminaatvloer.
Tuin
De heerlijke achtertuin is onderhoudsvriendelijk aangelegd en voorzien van mooie strakke sierbestrating. De tuin heeft een groot terras en ligt op het zuiden, je kunt er dus volop genieten van de zon. Achterin de tuin vind je een ruime berging, ideaal voor het parkeren van je fiets en het opbergen van al je tuinspullen. Naast de berging bevindt zich de poort, je kunt dus ook gemakkelijk met je fiets achterom.
Bijzonderheden
- Gelegen in het populaire Piushavengebied;
- Gedeeltelijk voorzien van rolluiken;
- Plat dak voorzien van nieuwe toplaag in 2023;
- CV-ketel ATAG-2023
- Tuin op het zuiden;
- In rustige woonwijk gelegen;
- Winkels, scholen en de diverse uitvalswegen op korte afstand gelegen.                        
                        
                            
                                                            
                                    
                                        Soort woning
                                    
                                    
                                        Eengezinswoning                                    
                                 
                                
                            
                            
                                                            
                                
                                    
                                        Koopconditie
                                    
                                    
                                        Kosten koper                                    
                                 
                            
                            
                            
                                                            
                                                                                        
                            
                            
                            
                                                            
                            
                            
                            
                            
                                                            
                                                     
                        
                        
                        
                                                                                                Wilt u graag een volledige brochure ontvangen? Vul dan uw naam en emailadres in en we sturen u direct door naar de brochure.